Дом 269м², 2-этажный, участок 7 сот.
17 400 000 ₽ 64 700 ₽ за м²
Октябрьский район, мкр. Кленовый, Путевой переулок 67
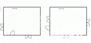
На первом этаже расположены: котельная, сауна, сан. узел, ванная, кухня, гостиная, спальня.
На втором этаже: спортзал, сан. узел, лоджия, офис, гостиная и две спальни.
Для комфортного проживания в дом...
Агентство, 22.10.2025